
AERO:Form Cube Open Cell
Fabricated Metal Open Cell Ceiling SystemFeatures interconnected beams that form shapes from traditional cubes to bespoke designs in floating and wall to wall configurations.
Specifications
- Material
- Aluminum (Fabricated)
- Weight
- 0.67 - 1.10 lbs. / ln.ft.
- Thickness
- 0.040" - 0.060" (design-dependent)
- Surface Finish
- Laminated Woodgrain Film
Solid Color Powder Coat
Woodgrain Powder Coat - Acoustic Performance
- Perforated baffles are supplied with acoustic infills to absorb sound. NRC values vary based on design and application.
- Seismic Performance
- This product has been engineered for use in all seismic areas. Installations may require additional attachments. Check with local code officials or a licensed engineer for additional requirements.
- Fire Performance
- Class A: Tested per ASTM E84. Flame Spread Index 25 or less. Smoke Developed Index 50 or less. CAN/ULC S102 surface burning characteristics. Flame Spread Rating 25 or less. Smoke Developed Classification 50 or less.
- LEED Points
- LEED BD+C v4 (MR: Regional & Recycled Materials)
- Schools EQ: Acoustic Performance
- ID+C EQ: Low-Emitting Materials
- Declarations
- No VOCs
EPD available - Recycled Content
- Aluminum contains up to 80% recycled content
- Finishes
- Unlimited finish options - custom colors, wood looks, films & wood veneers. 16 standard wood look finishes.
- Custom Options
- Custom sizes & shapes – At Maxxit custom is what we do best. We will make any shape or size you can design.
- Standard Options
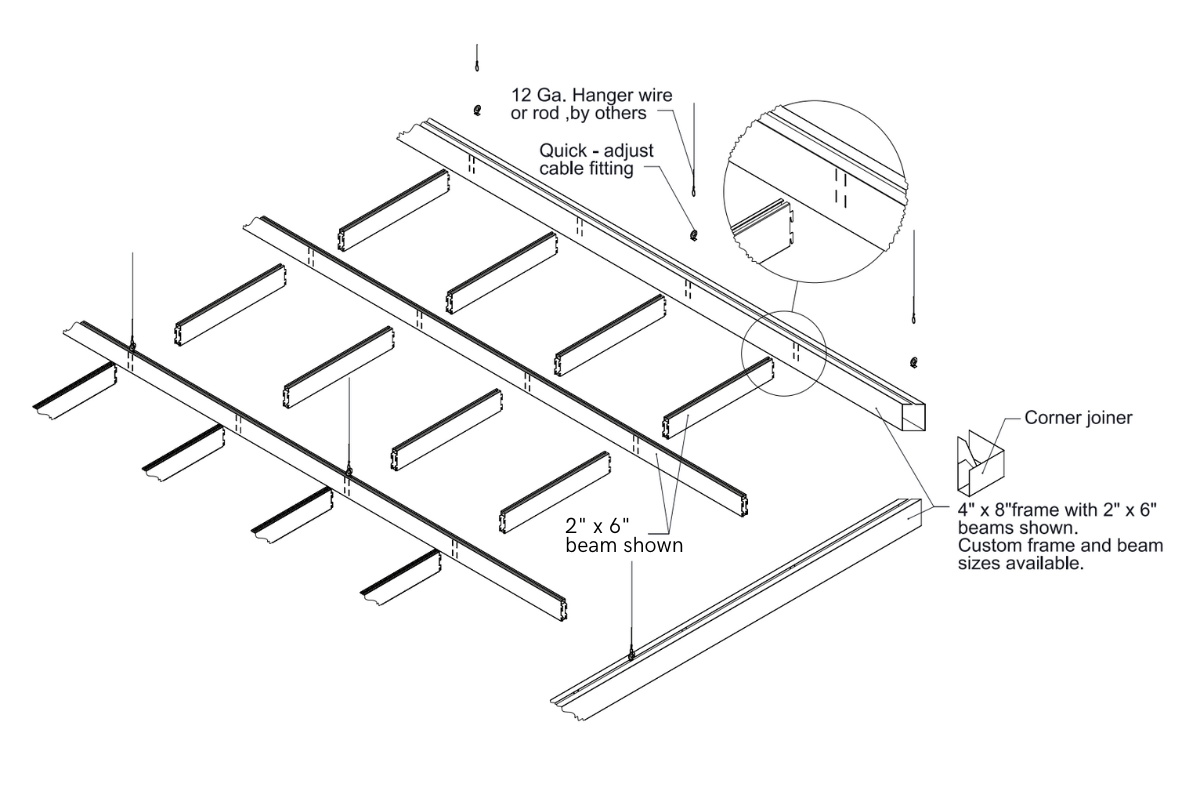
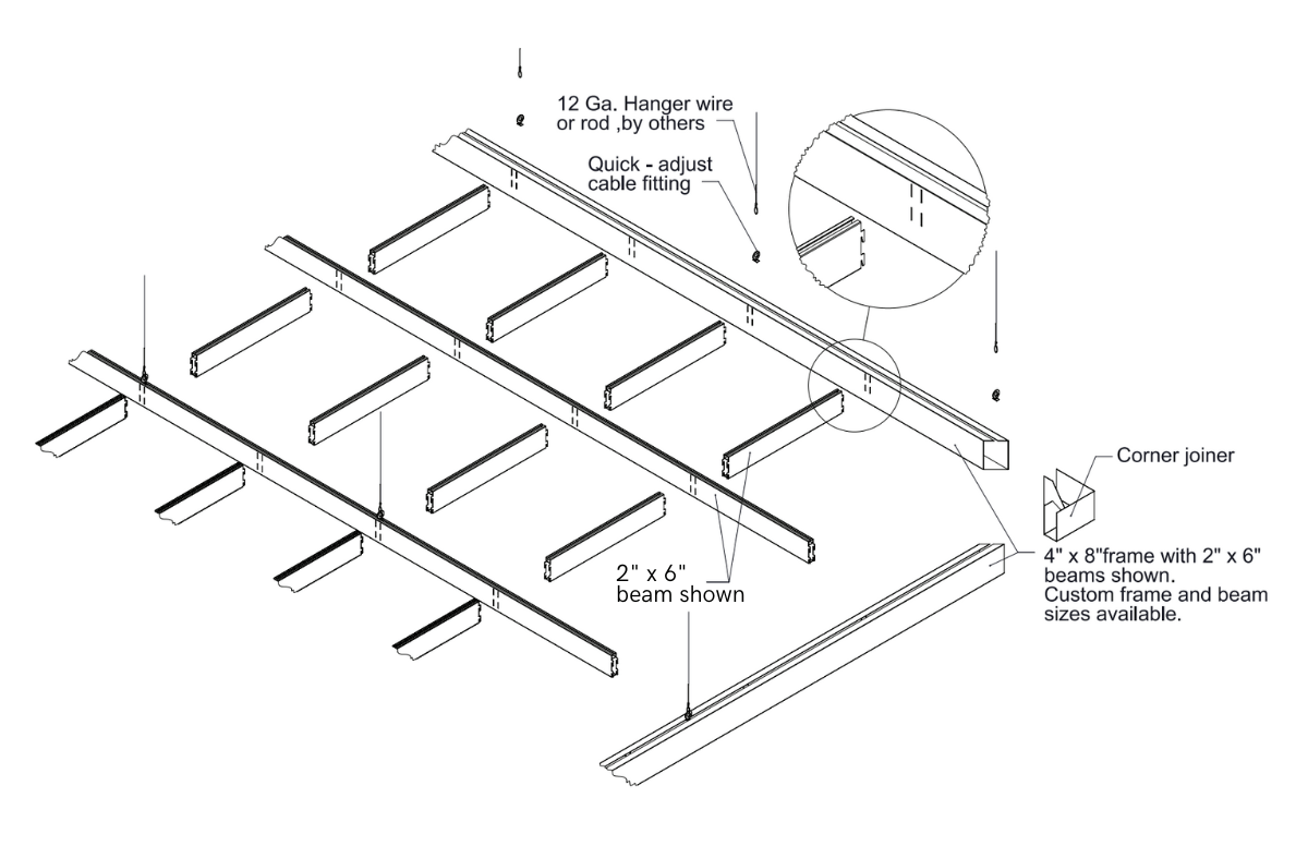
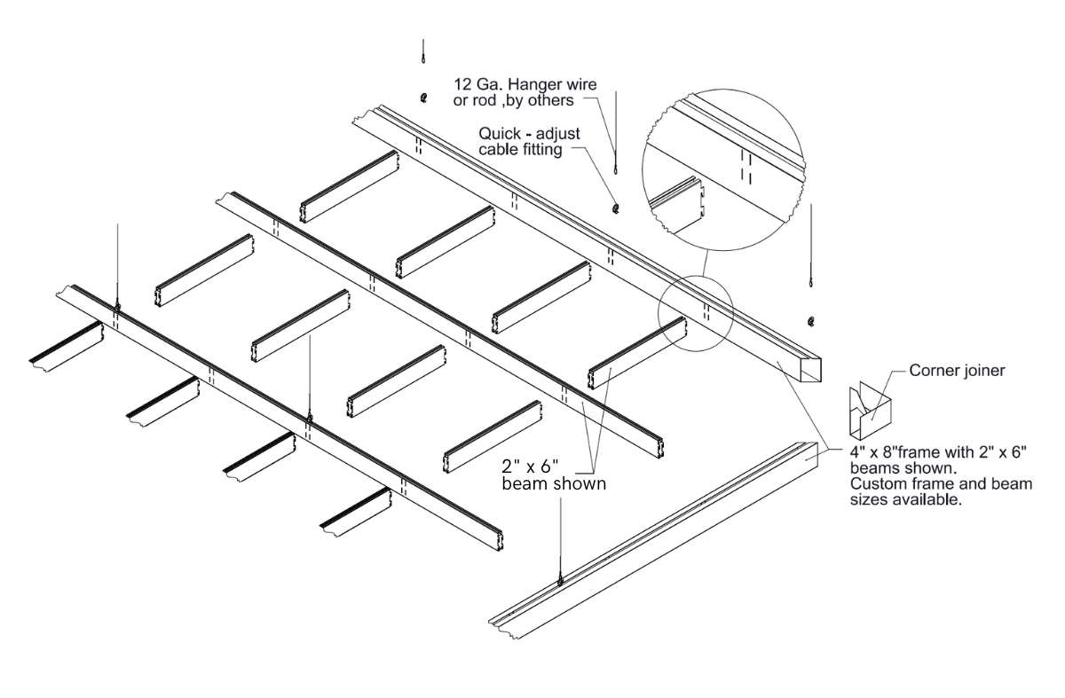
- Lengths - up to 12'
Depths - up to 15"
Widths - up to 24" - Installation
- Lightweight, pre-assembled & easy to install
- Versatile attachment options for Unistrut,® 15/16” HD Grid and cable-suspended applications
- Easy plenum access – attachment hardware allows baffles to slide for easy plenum access and adjustment during installation
- Care & Maintenance
- Cleanable using CDC recommended and EPA-approved disinfectants for fog, spray & wipe
Assembly
Material and Finishing Options
(Interior & Exterior) Formaldehyde-Free.
-
Golden Bronze
-
Metallic Sterling Silver
-
Soft Nickel
-
Blush Copper
-
Dark Bronze
-
Forged Charcoal
-
Gold
Maxxit powder coat finishes offer superior chemical, scratch and UV resistance, they do not emit VOC’s and are available in a broad range of glosses and specialty looks.
-
Chalkstone White
2-6 Gloss | LRV 85-86
-
White
12-20 Gloss | LRV 79-80
-
Snow White
25-30 Gloss | LRV 83-84
-
Black
25-35 Gloss
-
Blush Rose
20 Gloss
-
Sunrise Yellow
20 Gloss
-
Forest Green
20 Gloss
-
Pure Orange
20 Gloss
-
Tan Straw
20 Gloss
-
Mid Beige
20 Gloss
-
Sterling Silver
20 Gloss
-
Grey
65-75 Gloss
Wood look powder coated paint finishes for interior and exterior use. Formaldehyde-Free.
-
National Walnut
Wood look powder coated paint finish
-
Chestnut
Wood look powder coated paint finish
-
Rosewood
Wood look powder coated paint finish
-
European Cherry
Wood look powder coated paint finish
-
Knotty Pine
Wood look powder coated paint finish
-
Oak Fine
Wood look powder coated paint finish
-
Maple
Wood look powder coated paint finish
-
American Maple
Wood look powder coated paint finish
-
American Douglas
Wood look powder coated paint finish
-
Teak
Wood look powder coated paint finish
Standard Laminated (Film) Finishes for interior use only. Formaldehyde-free.
-
Brazilian Walnut
Wood look laminated film finish
-
Black Walnut
Wood look laminated film finish
-
North Oak
Wood look laminated film finish
-
Italian Walnut
Wood look laminated film finish
-
Canadian Oak
Wood look laminated film finish
-
White Oak
Wood look laminated film finish
-
American Natural
Wood look laminated film finish
Angles – Staggered 60°
-
Unperforated
-
S02 Staggered
-
S03 Straight
-
S04 Staggered
-
S05 Staggered
-
S06 Straight